Vakantieperiode 1/1/2026 - 8/1/2026

Title

Description

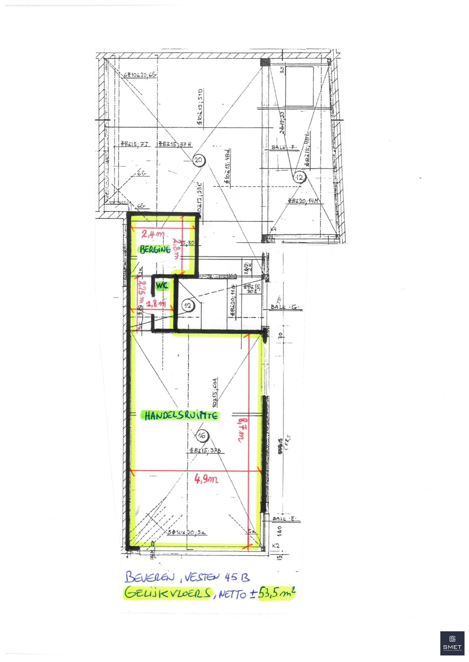
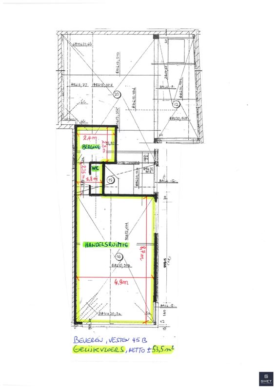
VESTEN 45 B BEVEREN

Vesten 45 B, 9120 BEVEREN
Verhuurd
  • IMG_1571 1.jpg
  • IMG_1576.jpg
  • IMG_1577.jpg
  • IMG_1579.jpg
  • IMG_1578.jpg
  • 1_Pl_BEVEREN, Vesten 45B (schets).pdf
800
1
EPC B
Vesten 45 B
9120 BEVEREN

HANDELSPAND OP TOPLOCATIE (Eventueel ook als pop up pand te huur) Op een absolute toplocatie in Beveren-Waas heeft u de mogelijkheid om een zeer mooie handelsruimte te huren die veel mogelijkheden te bieden heeft (bv. een winkel, een kantoor, een vrij beroep etc.). Achter het commerciële gedeelte/winkelruimte is er nog een privatieve bergruimte (waar zich de vernieuwde verwarmingsinstallatie bevindt) en een apart toilet. Er wordt nog een kitchenette geplaatst door de verhuurder in de berging. Bovendien heeft de huurder van deze handelsruimte het privatieve genotsrecht van de verharde zone vlak vóór de zaak. De totale netto opp. is ± 53,5 m². Het EPC = Label B De huurprijs bedraagt 800,- euro/maand + een kleine bijdrage/maand in de gemeenschappelijke kosten. beschikbaarheid is te bespreken huurwaarborg is 3 maand huur aandeel ingaande plaatsbeschrijving voor huurder is 120 euro + btw Nuttige info : Momenteel is de eigenaar dit pand volledig aan het opfrissen zodat u als huurder een het pand in perfecte instapklare staat zal ontvangen. Wat gaat er oa nog gebeuren: alles wordt opnieuw lichtkleurig geschilderd, er wordt een kitchenette geplaatst, nieuwe handenwasser toilet, plaatsen ledverlichting, nieuwe binnendeur, conform maken elektriciteit en volledig poetsen van het pand. Wenst u graag meer info of bent u geïnteresseerd in een plaatsbezoek? tel 03 775 41 88 of mail naar christel@vastgoed-smet.be

Comfort

  • Heating: CV op gas
  • Orientation of rear facade: Noordwest
  • Glazing: Dubbel

Urban planning information

  • Right of first refusal: Nee
  • Building permit obtained: Ja
  • Summons issued: Geen rechterlijke herstelmaatregel of bestuurlijke maatregel opgelegd
  • Subdivision permit: Nee
  • Destination:Woongebied
  • Asbesttype: Geen asbest gevonden

Antiatur, sed mo ea quo magnam faceruptis estorunt est, consecate es reria doloria earuntius ressim

  • Lorem ipsum dolor sit amet?

    Lorem ipsum dolor sit amet, consectetur adipiscing elit, sed do eiusmod tempor incididunt ut labore et dolore magna aliqua. Ut enim ad minim veniam, quis nostrud exercitation ullamco laboris nisi ut aliquip ex ea commodo consequat.

  • Lorem ipsum dolor sit amet?

    Lorem ipsum dolor sit amet, consectetur adipiscing elit, sed do eiusmod tempor incididunt ut labore et dolore magna aliqua. Ut enim ad minim veniam, quis nostrud exercitation ullamco laboris nisi ut aliquip ex ea commodo consequat.

  • Lorem ipsum dolor sit amet?

    Lorem ipsum dolor sit amet, consectetur adipiscing elit, sed do eiusmod tempor incididunt ut labore et dolore magna aliqua. Ut enim ad minim veniam, quis nostrud exercitation ullamco laboris nisi ut aliquip ex ea commodo consequat.

  • Sinds 1973

    Lorem ipsum dolor sit amet, consectetur adipiscing elit, sed do eiusmod tempor incididunt ut labore et dolore magna aliqua.

  • 100% ontzorgd

    Lorem ipsum dolor sit amet, consectetur adipiscing elit, sed do eiusmod tempor incididunt ut labore et dolore magna aliqua.

  • Alles onder 1 dak

    Lorem ipsum dolor sit amet, consectetur adipiscing elit, sed do eiusmod tempor incididunt ut labore et dolore magna aliqua.

  • Persoonlijk contact

    Lorem ipsum dolor sit amet, consectetur adipiscing elit, sed do eiusmod tempor incididunt ut labore et dolore magna aliqua.